Omschrijving
Woning beschikbaar: Hoofdweg 9 in Echten
* Op mooie locatie gelegen, karakteristieke en netjes onderhouden helft van een dubbel woonhuis, voorzien van een aangebouwde én vrijstaande garage
* Gelegen op een ruim perceel van maar liefst 1.010 m².
* Echten biedt een rustige, landelijke woonomgeving met alle voorzieningen binnen handbereik- Vanaf de slaapverdieping is er prachtig zicht op het Tjeukemeer-
* De achtertuin grenst direct aan uitgestrekte landerijen
Nabij Lemmer en toch landelijk wonen—dat kan in deze karakteristieke, netjes onderhouden helft van een dubbel woonhuis uit 1908. Gelegen op een royaal perceel van 1.010 m², met een achtertuin die direct grenst aan uitgestrekte landerijen, ervaar je hier het echte buitengevoel.
De ruime voortuin biedt privacy en afstand tot de weg, terwijl je binnen beschikt over maar liefst vier slaapkamers én zowel een aangebouwde als een vrijstaande garage.
Het huis vraagt om modernisering, maar vormt daarmee juist een prachtige kans voor een volgende generatie om dit sfeervolle huis naar eigen smaak aan te passen en in te richten.
Echten is een geliefd streekdorp in de gemeente De Fryske Marren: rustig, landelijk en met relatief veel gezinnen, maar toch gunstig gelegen nabij de A6 en op korte afstand van Lemmer.
Vanaf de slaapverdieping geniet je van zicht op het Tjeukemeer, en via de schitterende vaarroutes vaar je in alle richtingen uit—naar Lemmer, het Slotermeer of zelfs het IJsselmeer. Hier woon je vrij, ruim en toch heerlijk centraal.
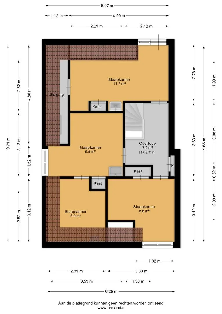
Indeling:
Begane grond:
– entree/hal met trapopgang, gasmeter, meterkast vv 4 groepen en vaste kast
– woonkamer met haardpartij
– gesloten keuken met kelder en een eenvoudig keukenblok en afzuigkap
– achterkamer met vaste kast en haardpartij
– aanbouw:- aanbouw met achterdeur en C.V.-ketel (2024)- garage- doucheruimte- toilet
Verdieping:
– overloop met vaste kast
– slaapkamer 1 met deur naar plat dak, wastafel, vaste kast en berging
– slaapkamer 2 met wastafel, vaste kast en dakkapel
– slaapkamer 3 met dakraam
– slaapkamer 4 met vaste kast en dakkapel
Bijzonderheden:
– Erfdienstbaarheid: recht van wederzijds gebruik om rioolwater af te voeren tussen huisnummer 9 en 11
– Vochtplekken in gevel(s): in de aanbouw zijn vochtplekken aanwezig, kenmerkend voor een halfsteens muur
– Gerepareerde scheuren in gevel: beperkt herstel van voegwerk aan de zuid- en westgevel; scheurvorming is gestopt na funderingsherstel in 2008 (zie MOVE)
– Lekkage dakkapel: recent verholpen
– Aangesloten op riool
– Asbest: plafond in de garage bevat asbest
– Voorzieningen nabij: bushalte (43 m), Echtenerbrug 2 km, Lemmer 6,7 km, afrit A6 (3 km), kinderopvang Echtenerbrug 2 km, speeltuin (1,1 km), school (1,4 km), supermarkt (1,7 km) en treinstation Heerenveen 16,5 km























































