Omschrijving
Woning beschikbaar: Ulohôf 9 in Joure
Buurtwonen Ulohof – Toekomstbestendig wonen voor senioren in Joure
Nieuwbouw, levensloopbestendig en zorgeloos wonen
Aan de Ulohof in Joure worden 25 moderne, gelijkvloerse appartementen speciaal voor senioren. Deze comfortabele woningen zijn ideaal voor 67-plussers of gepensioneerden die willen blijven wonen, ook als hun zorgbehoefte in de toekomst verandert. De oplevering zal naar verwachting in week 12 van dit jaar plaatsvinden.
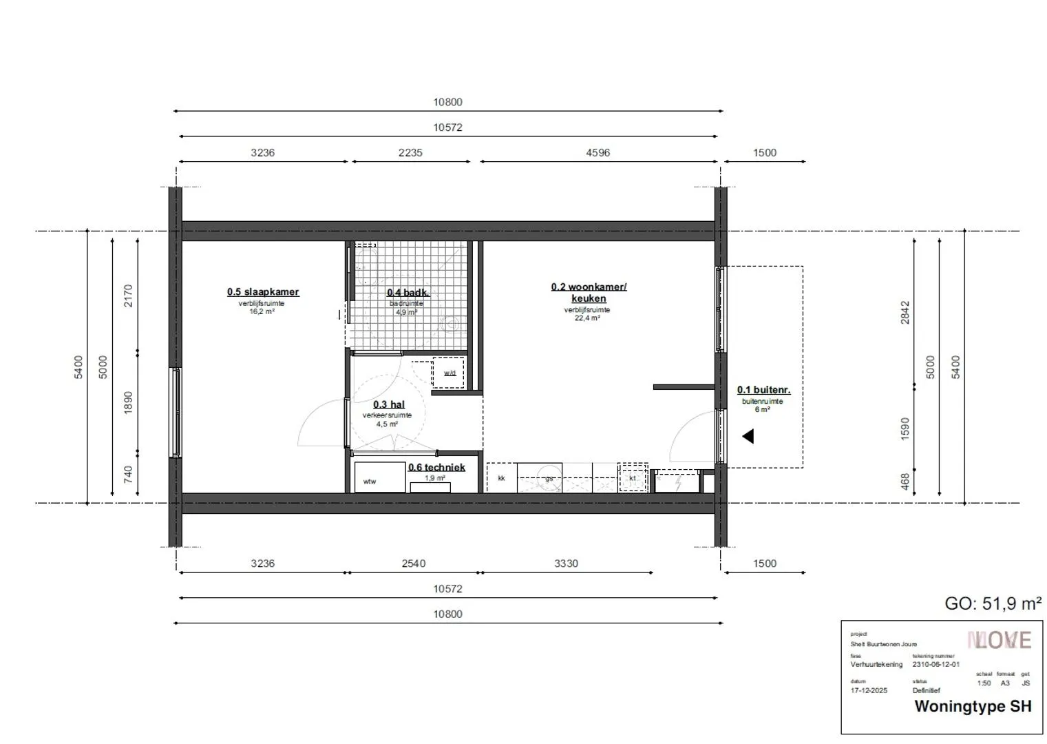
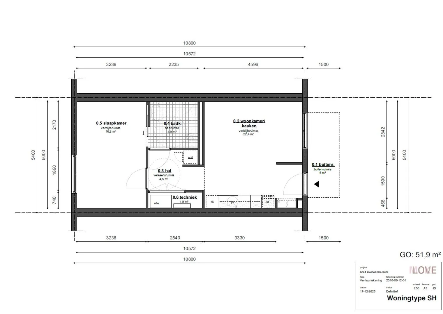
Appartement: woonoppervlak ca 52 m2
– Type Comfort, 1 slaapkamer
– Voor alleenstaanden
– Duurzaam en gasloos, lage energielasten
– Woonkamer met open keuken, ruime badkamer, separaat toilet, slaapkamer
– Eigen berging met oplaadpunt voor scootmobiel
– Huurprijs: €930 per maand (+ €40 servicekosten)
– Huurtoeslag mogelijk
Faciliteiten & Gemeenschap
– Kleinschalig en drempelvrij, rollatorvriendelijk
– Centrale, sfeervolle gemeenschappelijke huiskamer (97 m²)
– Zorg dichtbij: ondersteuning of verpleging via Buurtzorg
– Rustige, groene omgeving met winkels en supermarkt op 500 meter
Waarom kiezen voor Buurtwonen Ulohof?
– Blijf wonen ook bij toenemende zorgbehoefte
– Veilig, gezellig en toekomstgericht
– Comfortabel en energiezuinig
– Betaalbaar wonen in sociale huur
Planning
– Verwachte oplevering: week 12
Beschikbaarheid huurappartementen
– Bent u 67-plus of gepensioneerd en zoekt u een comfortabel appartement voor de toekomst? Informeer vandaag nog naar de mogelijkheden – er zijn nog enkele huurappartementen van dit type beschikbaar.













