Omschrijving
Woning verkocht: Menso Poppiusstraat 4 in Oosterzee
* Instapklaar en zeer netjes onderhouden tussenwoning (1958, label B) met aangebouwde bijkeuken (2023), aangebouwde berging en achterom
* Vanuit woonkamer zicht op bomen en een grasveldje waar geregeld schapen staan
* Oosterzee ligt tussen direct nabij de A6, tussen Lemmer en Joure
* Op loopafstand Tjeukemeer, haven, strandje en basisschool
* 8 zonnepanelen (2022)
Net opgeknapt en nu klaar voor een nieuwe eigenaar!
Deze instapklare tussenwoning uit 1958, met energielabel B, biedt een comfortabele en goed onderhouden woonomgeving. De woning is voorzien van een aangebouwde bijkeuken (2023), een aangebouwde berging, en beschikt over een achterom. Vanuit de woonkamer heb je een prachtig uitzicht op bomen en een grasveldje waar geregeld schapen grazen, wat zorgt voor een rustige en groene woonbeleving.
Oosterzee ligt direct nabij de A6, gunstig gelegen tussen Lemmer en Joure. Op loopafstand vind je het Tjeukemeer, de haven, een strandje en de basisschool, waardoor zowel ontspanning als praktische voorzieningen dichtbij zijn. Met 8 zonnepanelen (geïnstalleerd in 2022) is de woning bovendien energiezuinig.
Indeling:
Begane grond:
– entree/hal
– meterkast vv groepen + 4x aardlek
– toilet (natuurlijke ventilatie)
– woonkamer met zicht op bomen en grasveldje en schuifpui (2016)
– deels open keuken met afzuigkap, 4-pits gaskookplaat, oven, vaatwasser, unit 2: koelkast, vriezer
– aangebouwde bijkeuken (vv van extra dikke balken dus opbouw mogelijk) met aansluiting wasmachine
– aangebouwde berging (buitenom bereikbaar)
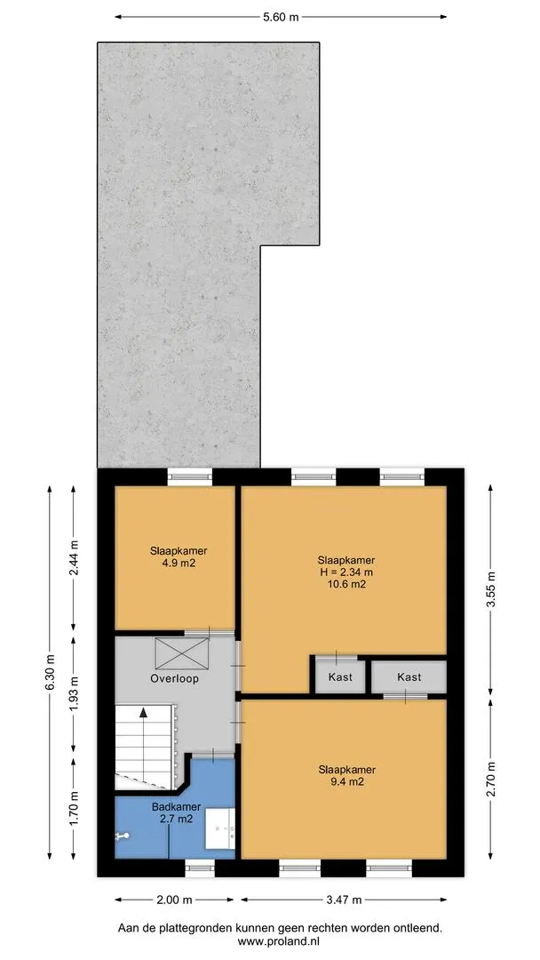
1e verdieping:
– overloop
– slaapkamer 1, 2 (met vaste kast) en 3
– badkamer met wastafel in meubel en inloopdouche
Zolder: vliezo:
– zolderberging met c.v.-ketel (2016, eigendom)
Bijzonderheden:
– schutting staat op eigen grond
– platte dak bijkeuken/berging (2023)
– zonnepanelen 8 stuks (2022)
– 2021: nagenoeg alle stopcontacten vervangen
– 2018: meterkast vernieuwd
– dak: geïsoleerde dakplaten
Een bezichtiging bij voorkeur aanvragen per email of funda.





































