Omschrijving
Woning verkocht: Struikheide 7 in Heerenveen
Vrijstaande Villa in Golfresort ‘Heidemeer’: Ruimte, Rust & Eigen Praktijkruimte
Een stijlvolle vrijstaande villa uit 1994 in het hart van Golfresort ‘Heidemeer’ verwelkomt je op een weids perceel van 1.158 m2. Deze ruime woning van 255 m2 biedt 4 slaapkamers en veelzijdige mogelijkheden voor het moderne leven.
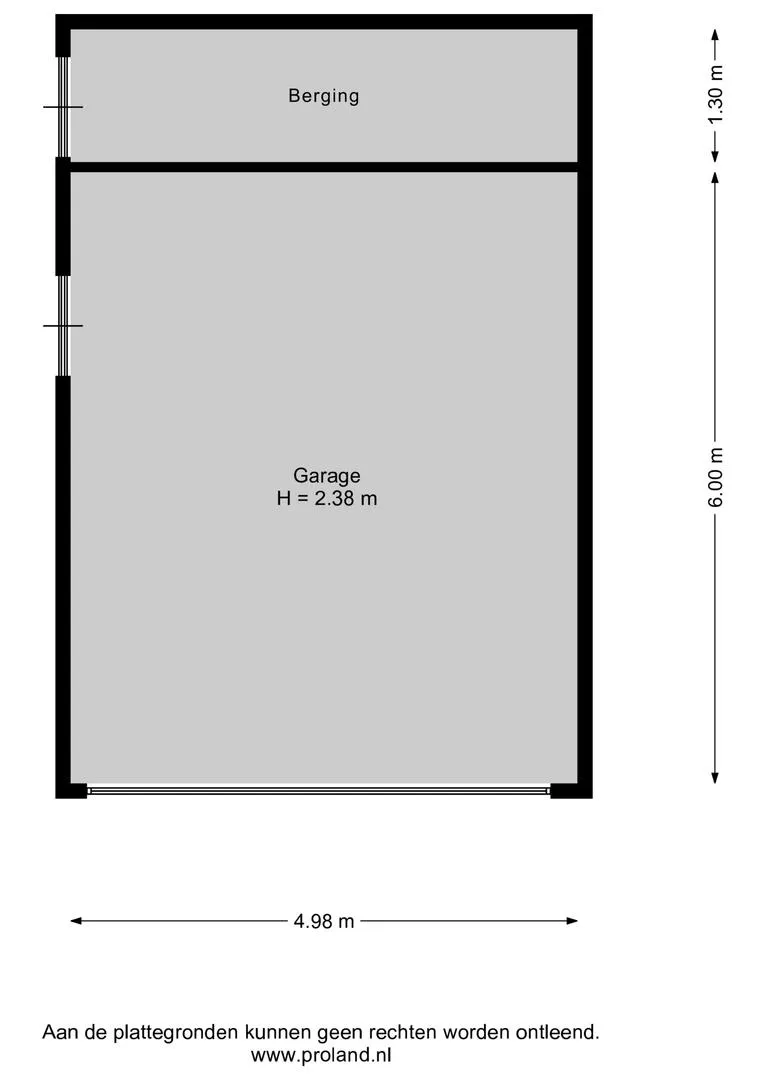
De voormalige garage is slim omgetoverd tot een flexibele ruimte die kan dienen als praktijkruimte, hobbyruimte, kantoor of zelfs als extra slaapkamer. Daarbij is er een extra garage met aangebouwde berging toegevoegd, waardoor ruimte en opslag nooit tekortschieten.
De royale woonkamer van 50 m2 is slim verdeeld in knusse ruimtes, terwijl de ruime badkamer, vernieuwd in 2013, een eigen wellnesservaring biedt met een stoomcabine en Finse sauna.
Privacy is een hoogtepunt, zowel binnen als buiten. De tuingerichte woonkamer biedt een serene sfeer, terwijl de vrije achtertuin grenst aan de 9-holes golfbaan, waardoor een gevoel van ruimte en vrijheid ontstaat.
De ligging in Golfresort ‘Heidemeer’ is een ware bonus. Omringd door natuur en water, geniet je van nabijheid tot voorzieningen zoals Thialf (1 km), scholen en winkels (3 km), en snelle toegang tot de uitvalswegen A7 en A32. Op loopafstand van het Heidemeer, ideaal voor ontspannende wandelingen en zomers zwemplezier.
De praktijkruimte van 28 m2 met eigen opgang biedt veelzijdige opties voor wonen en werken onder één dak, aanpasbaar naar eigen behoefte.
Deze woning is perfect voor diverse doelgroepen, van gezinnen die ruimte en rust zoeken tot degenen die een flexibele leefruimte wensen.
Indeling:
Begane grond:
• Entree/hal
• Meterkast: krachtstroom, 9 groepen + 2x aardlek
• Wandcloset + fontein (2013, m.v.)
• Bibliotheek met schuifpui
• Eetkamer met tuindeur
• Zitkamer met houtkachel
• Open keuken (2019) met Bosch inbouwapparatuur
• Bijkeuken met wasmachineaansluiting en buitendeur
Verdieping:
• Overloop
• Slaapkamers 1, 2 met balkondeur
• Slaapkamer 3
• Badkamer (2013) met luxe voorzieningen
Zolder: bereikbaar via vaste trap:
• Overloop met berging
• Slaapkamer 4 met recent kantelraam (2021) en berging
• Ruime zolderberging met c.v.-ketel (2010) en m.v.-unit.
Bijzonderheden:
• Kunststof boeidelen huis + garage
• Schilderwerk exterieur: 2021 door professioneel schildersbedrijf
• Tuin grenst aan golfbaan
• Plat dak geheel vernieuwd in 2016


























































