Omschrijving
Woning verkocht: Vogelzwin 27 in Sneek
* In woonwijk Loten II gelegen 2/1-kap (2002) met aangebouwde garage en losse overkapping
* Tegenover speelveld, dus niet direct tegenover andere huizen
* Energielabel A+ mede door 10 zonnepanelen (2022) en warmtepompboiler (2021)
* Rustige ligging in kindvriendelijke wijk
* Extra slaapkamer mogelijk op zolder (met vaste trap)
Deze 2/1-kapwoning, gebouwd in 2002, biedt een ideale combinatie van comfort, duurzaamheid en een fijne locatie in de woonwijk Loten II. Het huis is gelegen tegenover een speelveld, wat zorgt voor een open en groene uitstraling zonder direct uitzicht op andere woningen. De rustige en kindvriendelijke omgeving maakt het tot een perfect gezinshuis.
Met de speeltuin aan de overkant is dit een uitstekende locatie voor gezinnen met jonge kinderen. De woning ligt in een rustige straat in een gewilde, kindvriendelijke wijk, wat zorgt voor een fijne en veilige woonomgeving.
Indeling:
Begane grond:
– entree/hal
– wandcloset + fontein (2018)
– meterkast vv 7 groepen, pv-groep + 2x aardlek
– L-vormige woonkamer met erker en tuindeuren
– open keuken: hoekopstelling met inbouwapparatuur: vaatwasser, afzuigkap, 4-pits gaskookplaat, hetelucht oven en koelkast
– aangebouwde bijkeuken met aansluiting wasmachine, c.v.-ketel en buitendeur
– toegang garage met warmtepompboiler (Atag Lyclose hybride)
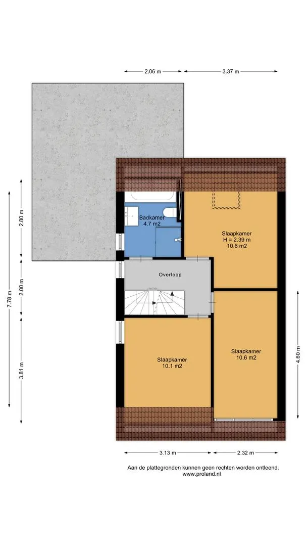
Verdieping:
– overloop
– badkamer (2018) met wastafel in meubel, ligbad, wandcloset
– slaapkamer 1 met kantelraam
– slaapkamer 2 vv dakkapel
– slaapkamer 3
Zolder: vaste trap:
– zolder met kantelraam (slaapkamer mogelijk)
– WTW















































